发布于2021-11-19 | 0人浏览
好的店铺不光要有新颖的设计,更要侧重于产品的展示,这样才能够营造出好的展示空间,吸引消费对象的注意力。

罗浮宫莆田城市展厅以「年轻美学」为主题,选用年轻时尚的色彩搭配与品牌配合,带来潮流的新视觉,为顾客带来丰富愉悦的体验。


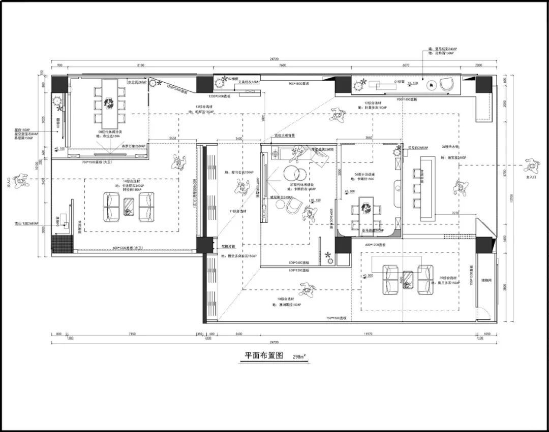
项目名称 | 罗浮宫陶瓷城市展厅
Project name | Louvre Ceramic City Exhibition Hall
设计机构 | 罗浮宫陶瓷总部
Design Agency | Louvre Ceramics Headquarters
项目性质 | 展厅
Project Nature | Exhibition hall
项目地址 | 莆田喜盈门建材家具广场
Project Address | Putian
「Recognition | Resonance」
认同 | 共鸣

步入罗浮宫莆田城市展厅,视线会不由自主地被展厅内美轮美奂的产品所吸引,安静地陈放一隅,沉默而含蓄,却让人感受到无限宽广、包容的力量。

从艺术设计到产品展示,一场跨界联合的设计盛宴,引起人们对美的共鸣,将彼此默契连结。

展厅放眼望去,大规格瓷砖产品营造了一种辽阔的空间感,空间一侧质感极强的金属拱门增添空间的现代感,使顾客进门便置身于美学的瓷砖空间中。


设计师将各个功能区进行有效的个性化分割,同时保留空间的完整性,既解决了不同产品的展示需求,又能实现参观和体验的灵活穿梭,加强了展厅的整体性,增强客户的体验感,从而起到提升客户的选购欲望。


在有限的隔断空间内,让视野空间内形成独立的聚场。若有若无的隔断让聚场与聚场之间形成微妙的关联。


交流洽谈区构造一个即共享又独立的多功能空间,兼具休息、接待与展示功能,这里不仅可以洽谈方案、选择产品,也可以品茗畅谈,接待朋友。让空间成为了一个愉悦的空间,一席温情的记录,一方共享的天地。
「Art | Inspiration」
艺术 | 灵感
将艺术与产品融合,让空间除了展示功能,满足洽谈中所需的一切的所需,使产品、艺术与空间互融,做出空间的意境体验,去除掉传统卖场的熙攘拥挤,创造出新的形式,跳出对陶瓷展厅的固有思维,让空间中的产品与艺术摆件一气呵成、交相辉映。



客户游走在其中,亲触每一种材质、每一种色彩搭配,感受人性化的设计兼顾视、听、触感与功能效应,体验沉浸式销售场景的乐趣,给予顾客更开放自由的空间。


罗浮宫陶瓷莆田城市展厅,这凝聚罗浮宫陶瓷品牌实力与价值的美学展示空间,打破空间的边界,将艺术生活紧密链接,共鸣人居的美好意象。