评价展厅是否成功的标准,不是看是否华丽、奢侈,而是看展厅所表达的概念、功能性以及产品本身的内涵。
罗浮宫陶瓷浙江嘉兴店重新打造一个多元化的展厅,对“传统”的展厅概念赋予了新的诠释和内涵,以美学的概念打造展示空间,融入服务、体验、交流等功能,产品多元化的营销渠道,把一般纯粹的展示空间与智能家居融为一体,多功能互补,提升展厅引流获客能力。
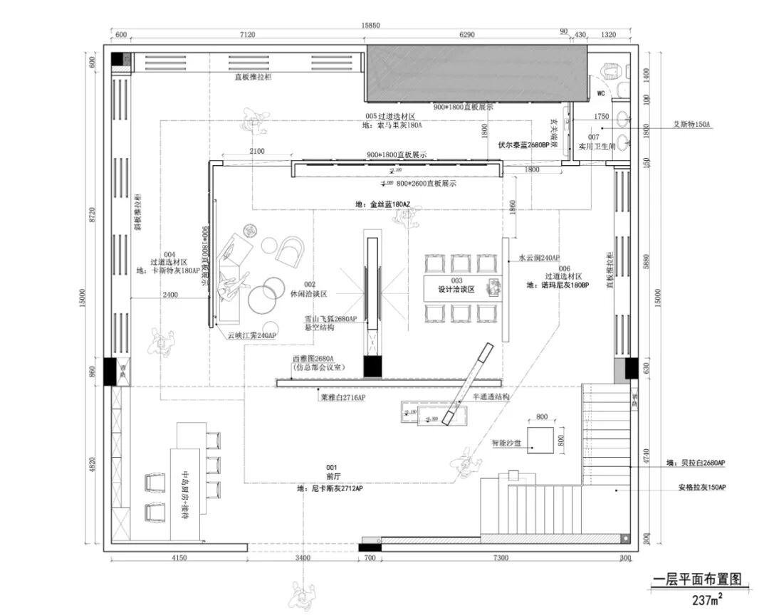
Project | Louvre Ceramic City Exhibition HallDesign Agency | Louvre DavidProject Nature | Exhibition hallProject Address | Jiaxing, Zhejiang门店升级改造之初,设计师经过不断地思考与衡量,在创新展示的基础上,更着重于空间的个性化和情境体验需求,打破展示的边界,从而更具象地再现品牌形象及产品的真实感。展厅的设计从立面开始,重新诠释并将其打造成为主要界面,在顾客及零售空间之中建立视觉连接。采用简单的几何切割面,融合罗浮宫博物馆的艺术基因,演绎罗浮宫陶瓷的独特美学,品牌logo幻化成胜利女神姿态,迎风而展的翅膀张力十足,以此构筑与众不同的吸引力。设计师利用“回字动线”交错,共同打造一个集展示、体验、办公于一体的美好生活样板区,外围进行产品展示,中心为休闲洽谈区和设计洽谈区,产品展示与空间功能相互叠加,让消费者对产品效果一目了然。
步入门店,目之所及便是温润如玉的LOUVRE-莱雅白2716AP,别致的纹理轻松营造了一种纯净透亮感,搭配金属感的装饰,既精致典雅又高端时尚。门店升级后,加强产品展示与空间体验感,产品展示更直观,让消费者看得到、摸得到,完美呈现产品效果,带来多重的感官体验。



步上旋转楼梯,视线随着圆形吊灯缓缓移动,墙面铺贴了大规格岩板LOUVRE-贝拉白,纹理自上而下流动,在空间释放简约而柔美的气质,素而有华,雅而显贵。
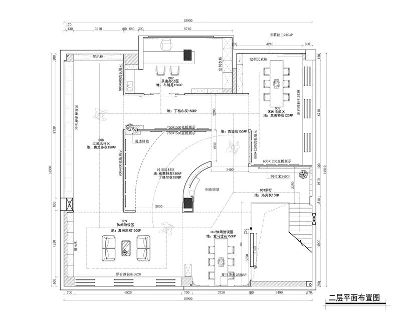
随着动线,二楼选材区、洽谈区、展示区环绕于左右,打破了以往的固定格局,整体空间更加开阔,动线更加自由。空间由动至静,营造私密性与开放性的共生。



更新的初衷是为了更多地构建场景展示,以产品与装饰的搭配引起消费者的共鸣,增加消费者的体验感。

罗浮宫陶瓷浙江嘉兴店融入美学瓷砖+全屋定制+智能家居多元板块,将产品自然地融入到整体空间中,全店由卢浮宫大卫团队设计、施工及安装,面向工程项目及高端家装客户考察参观,实现空间可见即可得。高端品牌多品类赋能,增强产品之间的互动,通过视觉与触觉的双重感受,让消费者有着沉浸式智能化体验。罗浮宫陶瓷浙江嘉兴门店在空间中建构美学符号,通过品牌基因融入打造多品类展示空间,兼顾产品的功能性和内涵。让消费者享受更极致更智能的家居体验,让人居艺术生活化。